Rif: IMMO-116992709
MONTALTO DI CASTRO
VITERBO
Pescia Romana, zona Chiarone
Questa proprietà unica, situata a Pescia Romana, poco distante da Capalbio e dal litorale , offre la possibilità di realizzare un nuovo fabbricato residenziale di circa 210 mq, grazie alla costituzione di un'azienda agricola. Con una superficie di 62.500 mq, il terreno include un laghetto per l'irrigazione e un pozzo, fornendo abbondanza d'acqua per qualsiasi esigenza agricola. Essendo un ex vivaio, la proprietà è ricca di piante e vegetazione, conferendo un'atmosfera verde e serena.
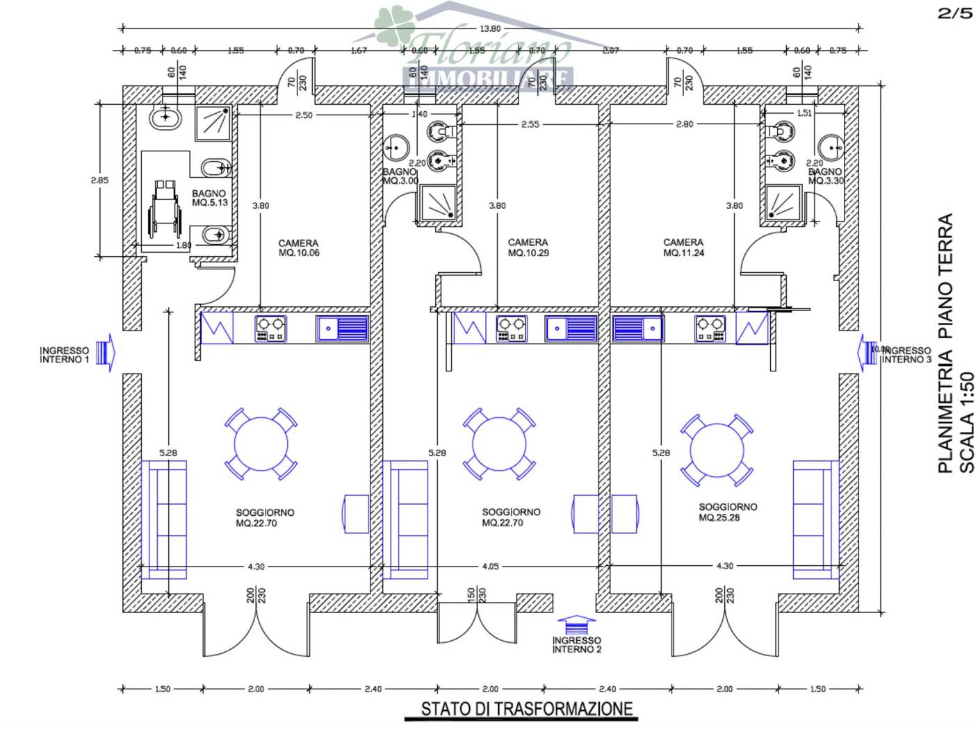
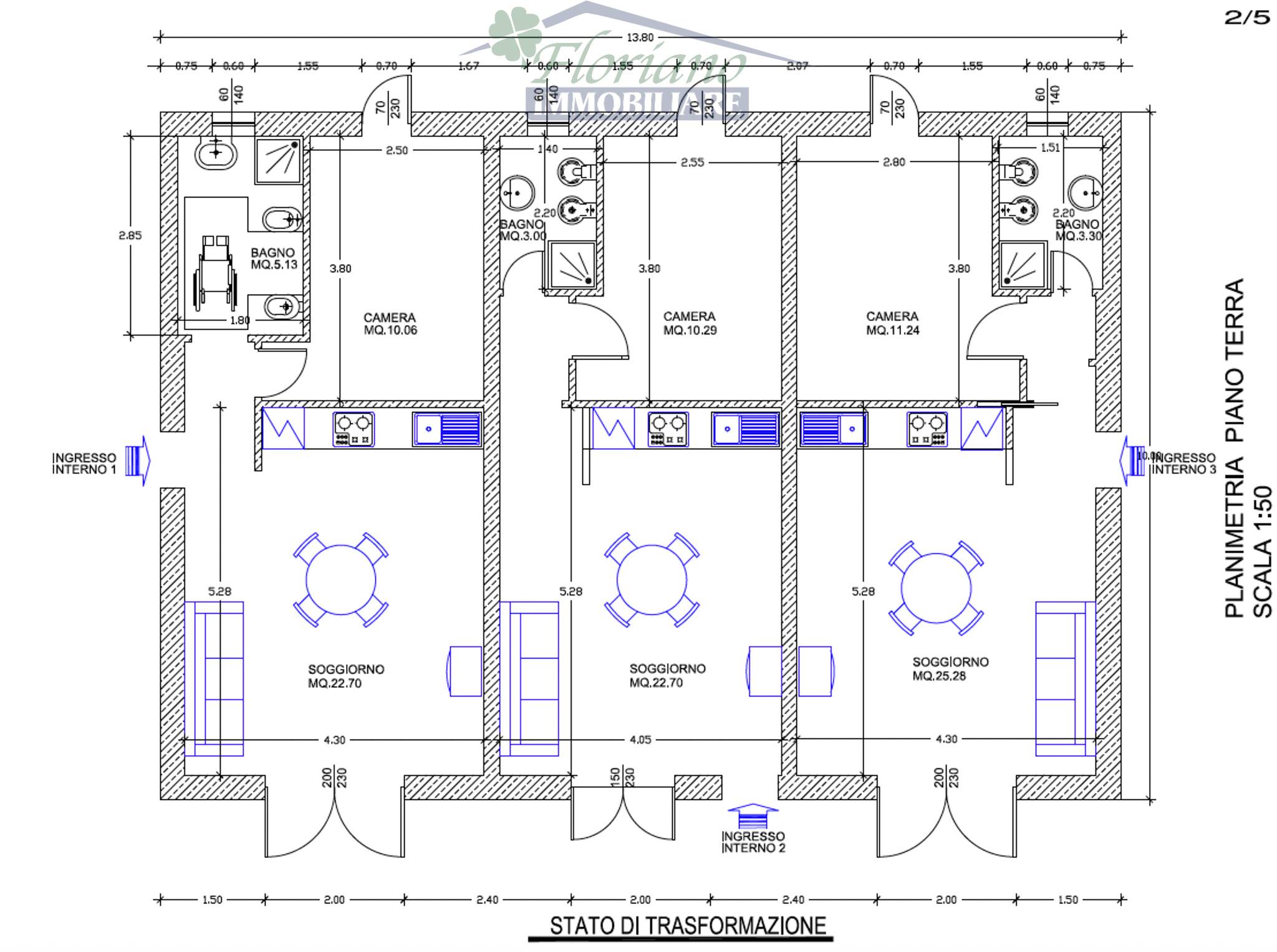
La proprietà comprende due fabbricati: il principale di 150 mq al piano terra con un soppalco di 100 mq, attualmente diviso in tre appartamenti bilocali speculari utilizzati per agriturismo. Ogni appartamento dispone di un soggiorno, una camera matrimoniale con bagno al piano terra e una seconda camera nel soppalco. Il secondo fabbricato è un deposito di circa 20 mq, ideale per stoccaggio e altre esigenze.
L'area piscina è uno dei punti forti della proprietà, con una vasca principale di circa 110 mq e una profondità di 1,3 m, affiancata da una seconda piscina più piccola di 25 mq. Entrambe le piscine sono circondate da un ampio solarium su tutti i lati, creando uno spazio perfetto per il relax. Sono presenti inoltre due docce esterne.
L'accesso alla proprietà avviene attraverso una strada privata, ornata da un elegante viale di pini, cipressi e altre piante mediterranee.
Per ulteriori informazioni potete anche contattarci al 3475587959 anche whatsapp Floriano immobiliare
Questa proprietà unica, situata a Pescia Romana, poco distante da Capalbio e dal litorale , offre la possibilità di realizzare un nuovo fabbricato residenziale di circa 210 mq, grazie alla costituzione di un'azienda agricola. Con una superficie di 62.500 mq, il terreno include un laghetto per l'irrigazione e un pozzo, fornendo abbondanza d'acqua per qualsiasi esigenza agricola. Essendo un ex vivaio, la proprietà è ricca di piante e vegetazione, conferendo un'atmosfera verde e serena.
La proprietà comprende due fabbricati: il principale di 150 mq al piano terra con un soppalco di 100 mq, attualmente diviso in tre appartamenti bilocali speculari utilizzati per agriturismo. Ogni appartamento dispone di un soggiorno, una camera matrimoniale con bagno al piano terra e una seconda camera nel soppalco. Il secondo fabbricato è un deposito di circa 20 mq, ideale per stoccaggio e altre esigenze.
L'area piscina è uno dei punti forti della proprietà, con una vasca principale di circa 110 mq e una profondità di 1,3 m, affiancata da una seconda piscina più piccola di 25 mq. Entrambe le piscine sono circondate da un ampio solarium su tutti i lati, creando uno spazio perfetto per il relax. Sono presenti inoltre due docce esterne.
L'accesso alla proprietà avviene attraverso una strada privata, ornata da un elegante viale di pini, cipressi e altre piante mediterranee.
Per ulteriori informazioni potete anche contattarci al 3475587959 anche whatsapp Floriano immobiliare
Consistenze
| Descrizione | Superficie | Sup. comm. |
|---|---|---|
| Principali | ||
| Altro - piano terra | 150 Mq | 75 Mqc |
| Soppalco - 1° piano | 100 Mq | 50 Mqc |
| Box/Garage - piano terra | 20 Mq | 10 Mqc |
| Terreno - piano terra | 62.500 Mq | 0 Mqc |
| Immobile - piano terra | 200 Mq | 200 Mqc |
| Totale | 335 Mqc | |








