Rif: IMMO-116992835
CAPALBIO
GROSSETO
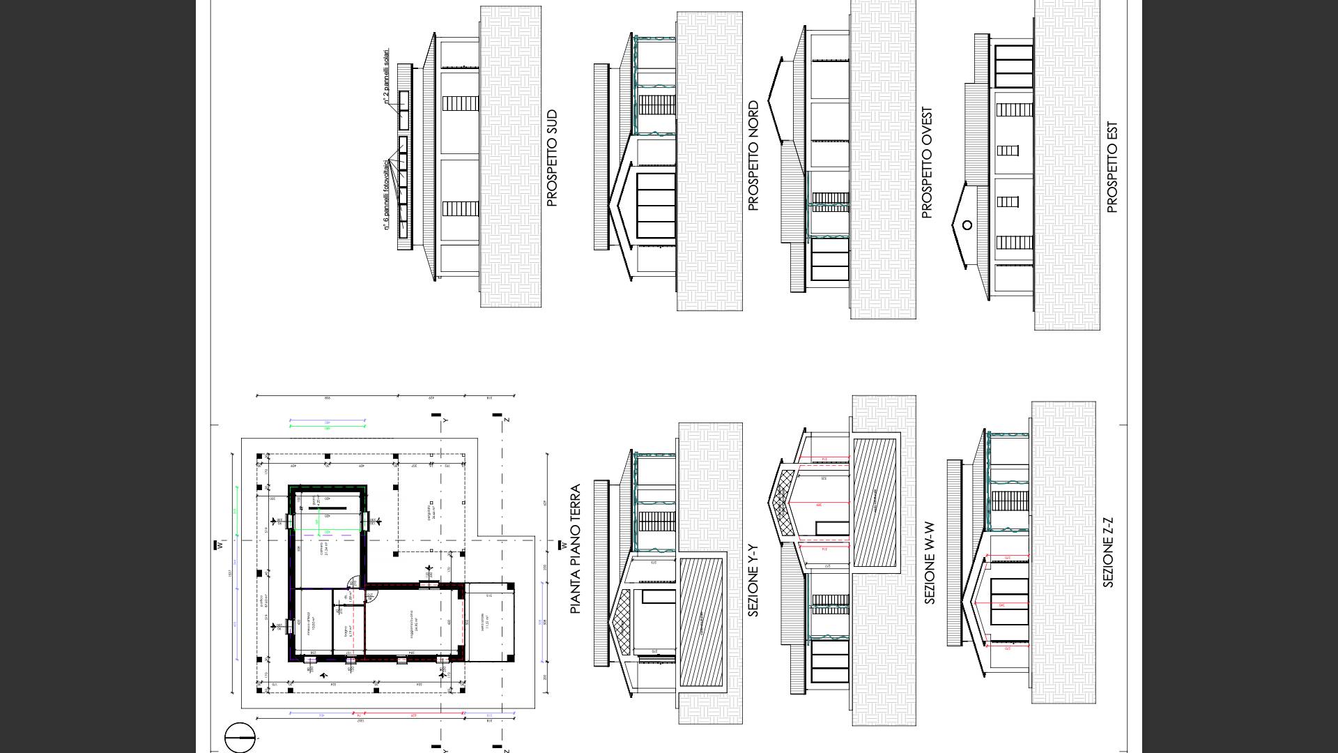
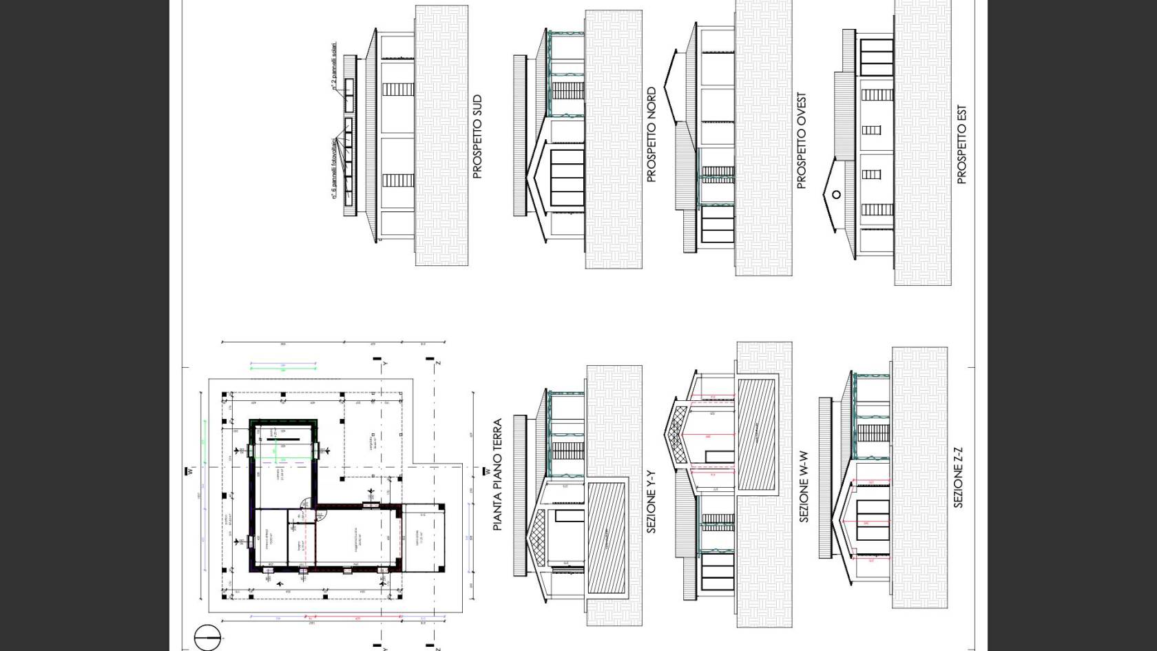
Ci troviamo in una posizione di pregio al confine tosco-laziale, nello specifico all'esordio della ricercata frazione di Pescia Fiorentina, caratterizzata da bei panorami, da stradine di campagna circondate dai campi coltivati, con attrazioni turistico-paesaggistiche raggiungibili nelle immediate vicinanze. Proponiamo in vendita un compendio immobiliare composto dal terreno di circa 5.000 mq (eventualmente incrementabili) ed un annesso agricolo con cambio destinazione d'uso in residenziale, per il quale è esistente un progetto approvato per la realizzazione di un villino indipendente di circa 100 mq comprese le aree scoperte. Come da progetto, la realizzazione prevede un immobile composto da 3 locali ed un bagno, ampio portico con pergolato e serra solare. Il tutto concepito con le attuali tecniche di efficientamento energetico atte a conferirgli classe energetica A, grazie all'osservanza delle vigenti norme antisismiche, di isolamento termico e acustico, dei sistemi di riscaldamento e degli impianti termici. Segnaliamo inoltre la possibilità di realizzazione di una piscina e di una tettoia per i posti auto. Infine, trattandosi di una zona generalmente ricca di falde acquifere, tramite realizzazione di pozzo artificiale, si attingerebbe ad una risorsa idrica sufficiente alla manutenzione del verde circondante l'abitazione.
Per ulteriori informazioni potete anche contattarci al 3475587959 Floriano
Per ulteriori informazioni potete anche contattarci al 3475587959 Floriano
Consistenze
| Descrizione | Superficie | Sup. comm. |
|---|---|---|
| Principali | ||
| Immobile - piano terra | 100 Mq | 100 Mqc |
| Terreno - piano terra | 5.000 Mq | 0 Mqc |
| Totale | 100 Mqc | |








