Rif: IMMO-108036401
CAPALBIO
GROSSETO
Capalbio
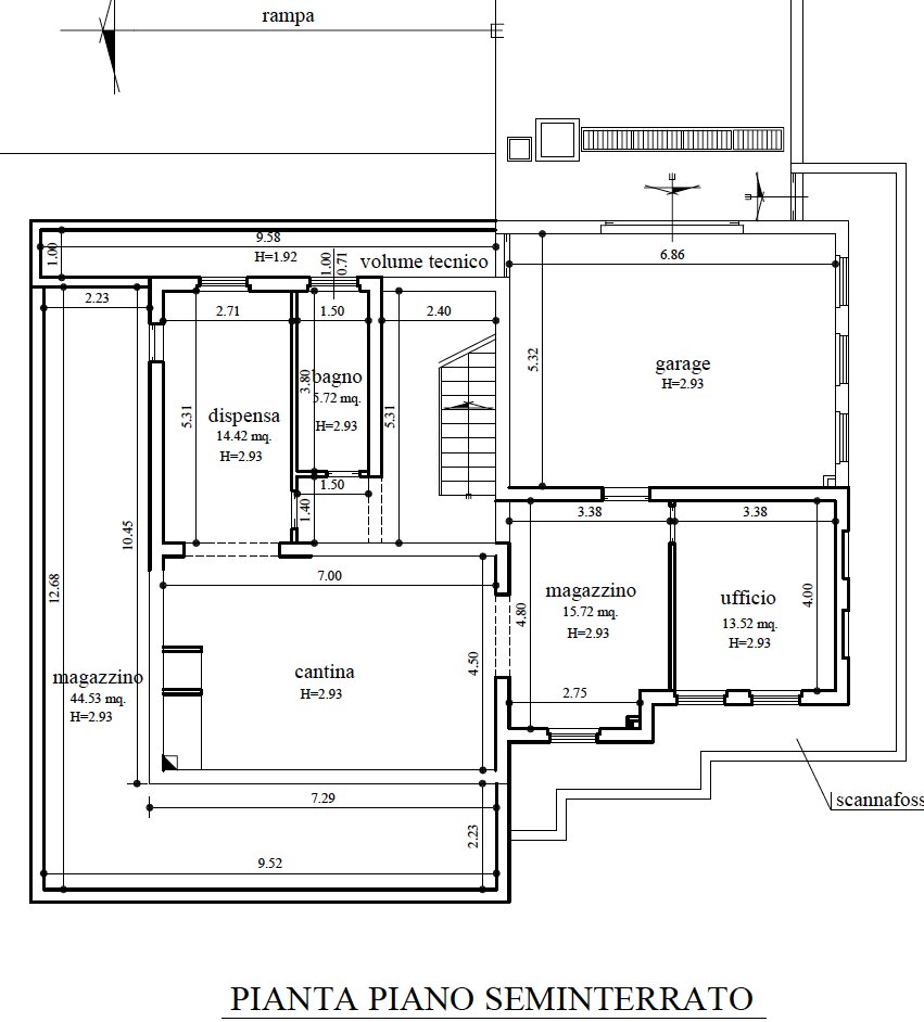
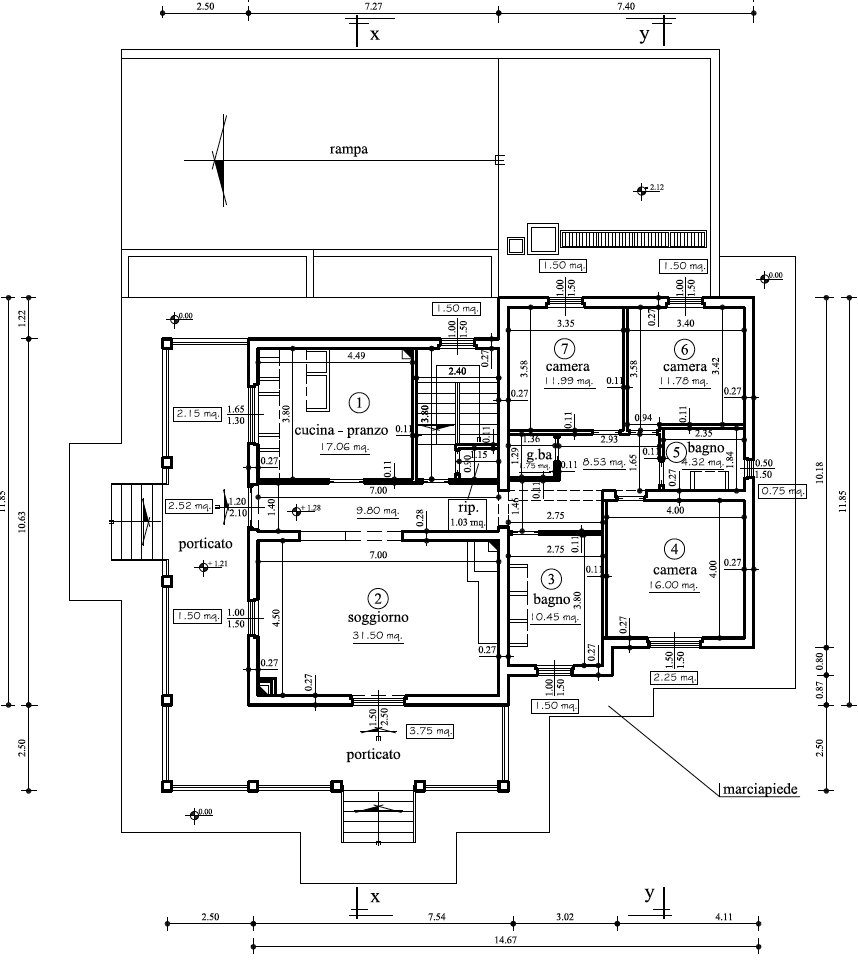
In vendita, villa indipendente di circa 240 mq con vista sul caratteristico borgo di Capalbio, circondata da un giardino privato di circa 3.000 mq. La casa si articola su due livelli: al piano terra rialzato troviamo un ingresso, un salone, una cucina, tre stanze da letto, due bagni e un ampio portico; al piano seminterrato si trova un'ampia area open space, una cantina, un ripostiglio, uno studio, un bagno e un garage. Esiste l'opzione di acquistare terreno aggiuntivo. Questa dimora, immersa in un affascinante contesto rurale, è situata nel cuore della maremma, vicino ai principali punti di interesse turistico, inclusi il borgo medievale di Capalbio, il Giardino dei Tarocchi, l'oasi di Burano e le rinomate spiagge della costa.
Per informazioni contattare il 3475587959 anche whatsapp Floriano immobiliare
In vendita, villa indipendente di circa 240 mq con vista sul caratteristico borgo di Capalbio, circondata da un giardino privato di circa 3.000 mq. La casa si articola su due livelli: al piano terra rialzato troviamo un ingresso, un salone, una cucina, tre stanze da letto, due bagni e un ampio portico; al piano seminterrato si trova un'ampia area open space, una cantina, un ripostiglio, uno studio, un bagno e un garage. Esiste l'opzione di acquistare terreno aggiuntivo. Questa dimora, immersa in un affascinante contesto rurale, è situata nel cuore della maremma, vicino ai principali punti di interesse turistico, inclusi il borgo medievale di Capalbio, il Giardino dei Tarocchi, l'oasi di Burano e le rinomate spiagge della costa.
Per informazioni contattare il 3475587959 anche whatsapp Floriano immobiliare
Consistenze
| Descrizione | Superficie | Sup. comm. |
|---|---|---|
| Principali | ||
| Immobile - piano rialzato | 120 Mq | 120 Mqc |
| Immobile - seminterrato | 120 Mq | 120 Mqc |
| Giardino/Resede | 3.000 Mq | 0 Mqc |
| Totale | 240 Mqc | |








